Die moderne, aber auch gemuetliche Nichtraucher- Ferienwohnung im Elbsandsteingebirge für max. 4 Personen wurde 2003, 2007 und 2010 vom Deutschen Tourismusverband mit drei Sternen ausgezeichnet. Sie liegt wunderbar ruhig am Ortsrand und am Waldrand mit schönem Fernblick von 2 überdachten Terrassen. Die Wohnung ist für Familien und Senioren geeignet. Gartennutzung, Grillplatz und Innenkamin sind besondere Merkmale. Sie ist Ausgangspunkt für Spaziergänge und Wanderungen im Nationalpark Saechsische Schweiz. Eine weitere Ferienwohnung in unmittelbarer Nähe können wir Ihnen vermitteln.

Leider müssen wir Tierfreunden mitteilen, dass wir keine Haustiere aufnehmen. Viele Gäste, die unter Tierhaarallergie leiden, fragen uns ausdrücklich danach.

Der Zugang zur Ferienwohnung befindet sich ebenerdig im Garten über die nach NW liegende überdachte Terrasse. Hier kann man auch an heißen Tagen im kühlen Schatten sitzen. Erst die Abendsonne erreicht diese Sitzplätze. Am ausziehbaren Tisch ist Platz zum Essen auch für eine große Familie. Der schöne Panoramablick nach Norden von dieser Terrasse aus ist als vorletztes Bild auf dieser Seite zu sehen.

Die Ferienwohnung wird über einen Flur erschlossen. Die erste Tür rechts führt ins Wohnzimmer, das 2007 neu eingerichtet wurde. Die mit Leder bezogene komfortable Eckcouch kann bei Bedarf zu zwei vollwertigen Schlafmöglichkeiten ausgezogen werden. Im Wohnzimmer befindet sich auch der Fernseher. Gegenüber vom Wohnzimmer befinden sich ein separates WC und eine separate Dusche.

Der Flur endet in der Küche. Die modern eingerichtete Küche mit elektrischem Backofen und 4-Platten- Ceranfeld, Kühlschrank mit separatem Gefrierteil, Mikrowelle und Geschirrspüler ist innenliegend und wird über eine Fortlufthaube über dem Herd ins Freie entlüftet. Kaffeemaschine, Toaster, Wasserkocher, Rührgerät sowie alles wichtige sonstige Küchenzubehör inkl. vieler Töpfe, Pfannen, Geschirr und Besteck sind vorhanden. Von der Küche nach rechts geht es in das

Kaminzimmer. Das Kaminzimmer ist gut als Frühstücksraum geeignet. Am offenen gut ziehenden und gut heizenden Kamin kann man gemütliche Abendstunden verbringen. Die gesamte Wohnung ist jedoch außerdem mit Warmwasser- Zentralheizung ausgerüstet, und in den meisten Räumen befindet sich zusätzlich eine Fußbodenheizung, so dass bei uns noch niemand gefroren hat. Die Eckbank im Kaminzimmer besteht aus zwei Betten, nach Entfernen der Polster können zwei weitere Schlafmöglichkeiten geschaffen werden. Im Kaminzimmer befindet sich eine Radioanlage mit CD-Spieler und Kassettenteil. Vom Kaminzimmer gelangt man durch eineTerrassentür

zu der nach SW gelegenen ebenfalls überdachten zweiten Terrasse. Hier kann man auch an kühleren Tagen zum Essen in der Sonne sitzen und ist vor kalten Ostwinden gut geschützt. Die Aussicht


von dieser Terrasse nach Süden zum Zschirnstein ist auf obigem Bild zu sehen.

In das Schlafzimmer gelangt man von der Küche nach links über einen kleinen Vorraum. Die Betten sind bei Ihrer Anreise bezogen. Von diesem


Vorraum aus kann man auch noch eine Dusche kombiniert mit WC erreichen. Handtücher sind vorhanden. Sämtliche Sanitärbereiche wurden 2009 erneuert.

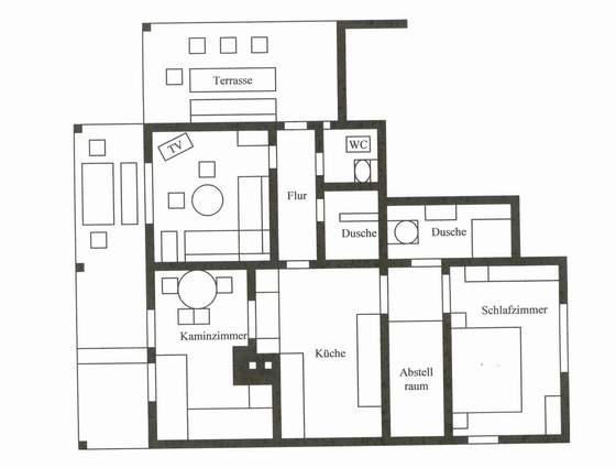
Eine Übersicht der Ferienwohnung erhalten Sie durch den Grundriss.


Außerhalb der Ferienwohnung im Garten kannn man von Mitte April bis Anfang September unter


einer Laubenulme in der Morgensonne Kaffee trinken und natürlich auch tags dann meist im Schatten der Laubenulme sitzen.

Die Lage des Hauses vor dem kleinen Zschirnstein zeigt das folgende Bild.


Von der überdachten Terrasse nach Norden hat man einen weiten Ausblick über Wiesen und Felder auf weitere Berge der Sächsischen Schweiz.


Gut beschreibt auch der Blick vom Kleinen Zschirnstein nach NO die Lage des Hauses, das auf diesem folgenden Bild am linken Bildrand zu sehen ist.